
Наш второй проект в Жилом комплексе «Браславский». Исходные планировки обеих квартир очень похожи, однако данный проект получился совершенно другим по стилю и функционалу. На этот раз в квартире нам нужно было предусмотреть еще и пространство для рабочего кабинета, который можно было бы отделить от остального объёма, кухню-гостиную, две спальни с гардеробными и кладовую. В квартире достаточно низкие потолки (2,5 метра), а кухня-гостиная расположена на северной стороне. Поэтому все приемы, используемые в этом проекте, были нацелены на зрительное увеличение высоты потолка и создание максимально светлого пространства.
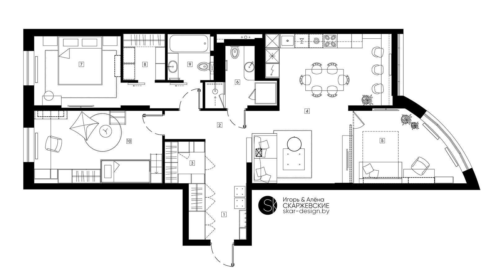
Процесс работы над планировкой был достаточно длительным, так как из-за большого количества несущих колонн и вентшахт в самых неподходящих местах нам приходилось буквально выкраивать пространство для всего необходимого. Так в ходе работы у нас получилось отделить кабинет от гостиной при помощи стеклянной лофт-перегородки, через которую свет из кабинета проникает в гостиную. При необходимости зону кабинета можно сделать приватной, задвинув шторы. Также в гостиной размещается проектор с экраном, который опускается с потолка, когда возникнет желание устроить сеанс кинопросмотра.
В прихожей за фасадами шкафа мы скрыли дополнительную гардеробную с кладовой, а в гостевом санузле удалось выкроить пространство для душевой и инфракрасной сауны. Иметь собственную сауну - давняя мечта хозяина квартиры.
Несмотря на все сложности и огромное количество пожеланий заказчиков, нам удалось создать светлый и уютный интерьер для комфортной семейной жизни.

1. Прихожая - 9,0 м2
2. Коридор - 4,1 м2
3. Гардеробная 1 - 3,0 м2
4. Кухня-гостиная - 29,8 м2
5. Кабинет - 12,0 м2
6. Гостевой санузел - 5,2 м2
7. Спальня - 15,0 м2
8. Гардеробная 2 - 3,5 м2
9. Ванная комната - 3,5 м2
10. Детская - 16,6 м2
Всего: 101,7 м2